Priemyselné stavby
Výrobná hala Schindler DSW
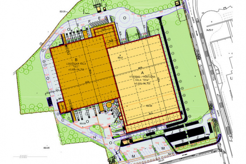
Miesto: Kostolné Kračany, Cesta slnka
Investor: Schindler Dunajská Streda a.s.
Typ: novostavba 2012-2013
Na základe dobrých skúseností z výstavby prvého závodu Schindler pokračovala spoločnosť Schindler v rozšírení jej výrobných kapacít. Pre nový závod na výrobu výťahových kabín spolu s logistickou halou zabezpečovalo ABJ projektovú aj inžiniersku činnosť. Veľkosť výrobnej a logistickej haly je spolu 30.000 m2. Obe funkcie majú vlastné administratívne a sociálne zázemie.










