Stavby v zahraničí
Hotel HILTON GARDEN INN
Miesto: Astrachan, Rusko
Typ: projekt, vo výstavbe
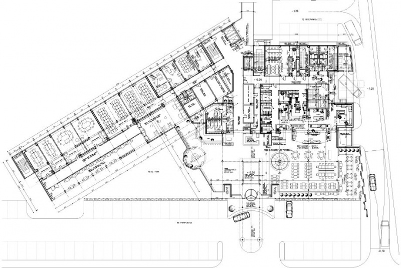
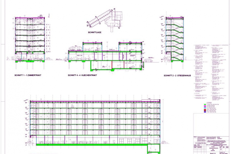
Hotel Hilton Garden Inn je chystaná investícia do mesta Astrachan, pripravovaná s rakúskymi a ruskými investormi. ABJ spracováva projekt od konceptu až po realizačný projekt spoločne s rakúskym statikom a projektantami TZB. Momentálne sa schvaľuje Projekt pre stav. povolenie a v prvej polovici roku 2009 by sa mal začať realizovať. Hotel má v lôžkovej časti 148 izieb v rôznych kombináciách vrátane izieb pre nemobilných, pričom v poslednom podlaží sú exkluzívnejšie izby pre náročnejších klientov. K vybavenosti hotela patria reštaurácie v 2 podlažiach, bar, fitness a rozsiahle konferenčné krídlo. Hotel je vybavený panoramatickými výťahmi, terasami pre reštaurácie a fitness, ako aj dostatočnými parkoviskami. Je umiestnený v areáli, ktorému dominuje zimná hala pre 6000 divákov "Zvezdnyj" a taktiež ho ohraničuje vodný kanál s plánovaným atraktívnym nábrežím.








